Casa indipendente a Treviso Bresciano

Codice immobile: 795

  Treviso Bresciano

  Casa indipendente

Locali 6+

Superficie 208 mq

Giardino 0 mq

CERT. EN.

CLASSE ENERGETICA G

Euro 149.000

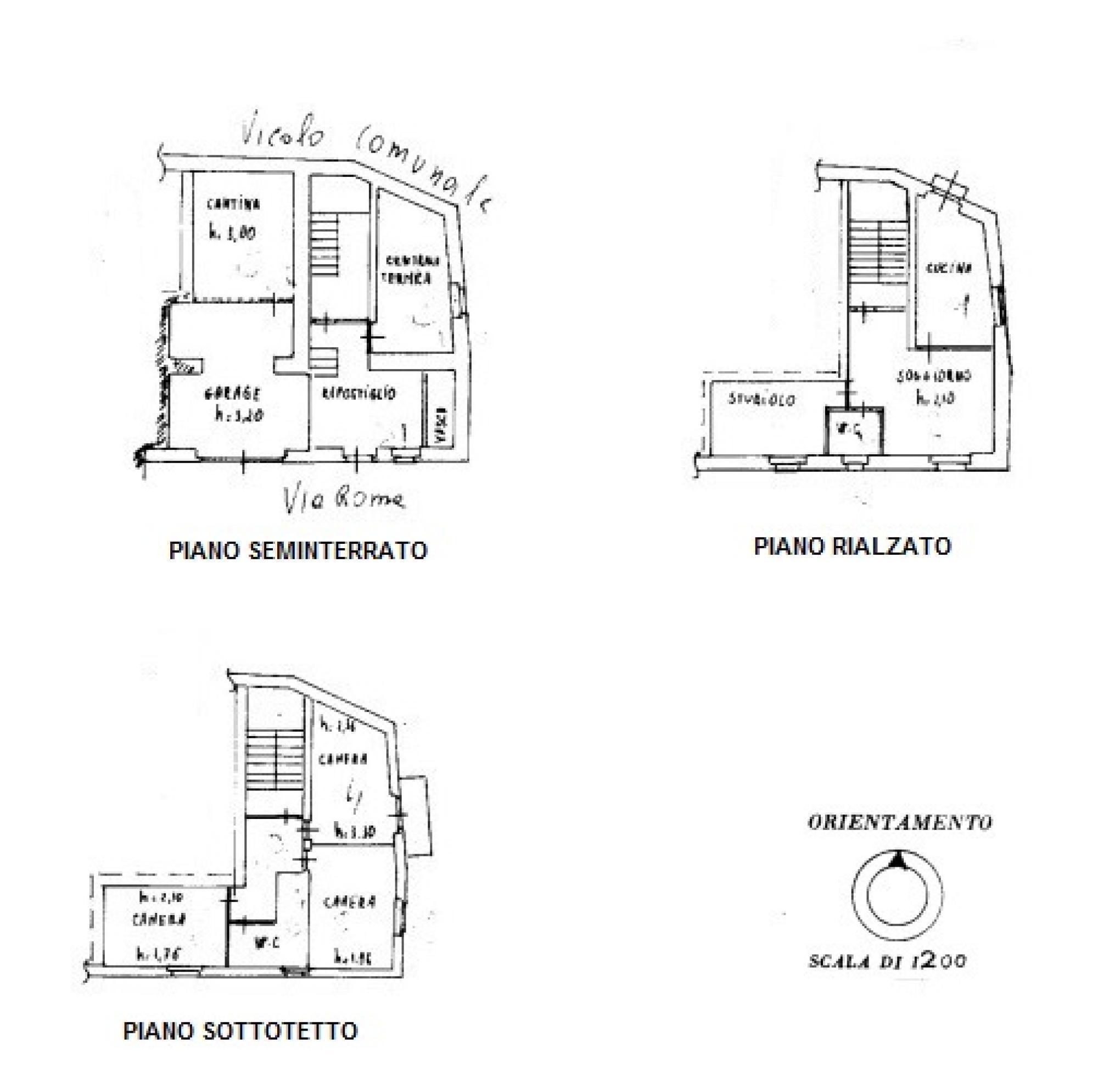
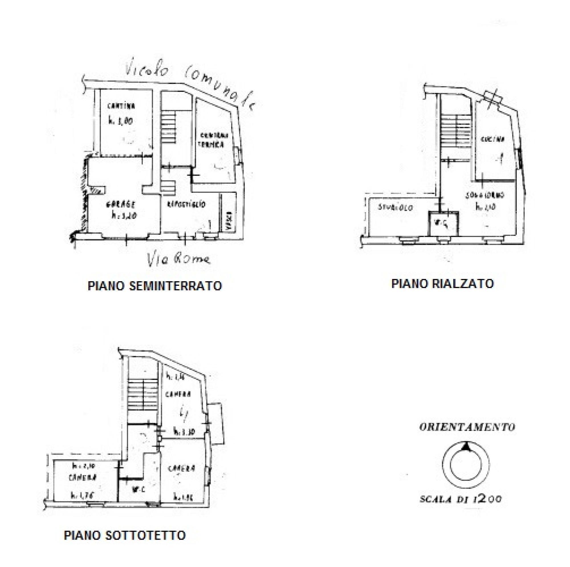
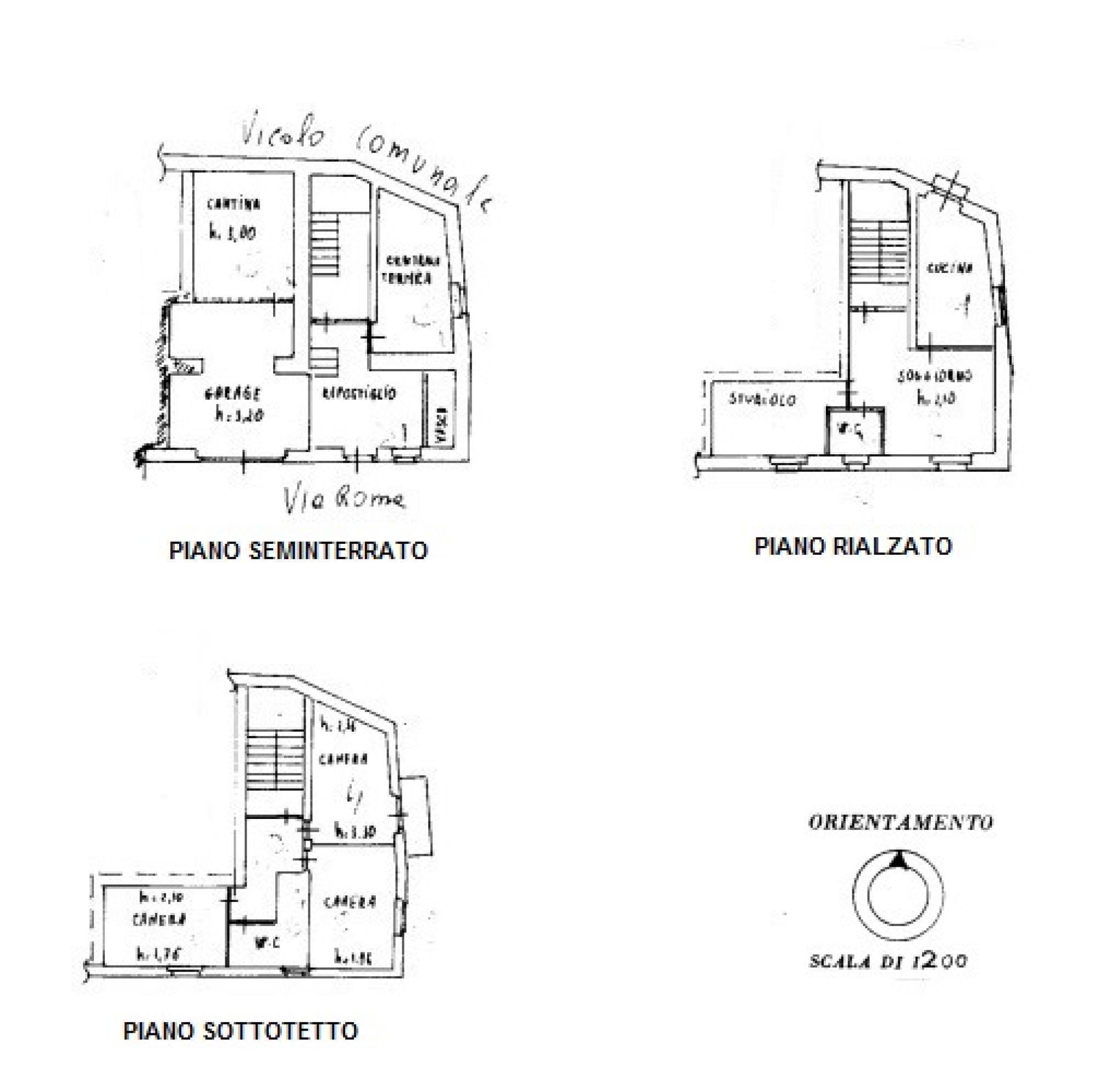
Frazione Trebbio. In posizione comoda e centrale, proponiamo casa indipendente cielo-terra con doppio ingresso, da Via Roma e pedonale da Via Zappatori.
L’immobile si sviluppa su tre livelli. Al piano seminterrato si trovano il garage, una cantina con volto e pavimento in mattoni ideale per lo stoccaggio di vini e alimenti, un ripostiglio e la centrale termica. La scala interna conduce al piano rialzato composto da cucina con ingresso da Via Zappatori, soggiorno, studio e bagno di servizio finestrato con doccia. Tramite la stessa scala si accede al piano sottotetto mansardato, coibentato e caratterizzato da travi in legno a vista, dove sono presenti tre camere da letto, di cui una con balcone, e un bagno finestrato con vasca.
La proprietà è un edificio storico del 1700, completamente ristrutturato negli anni ’80. I muri in pietra garantiscono un comfort climatico naturale, mantenendo la casa fresca in estate e calda in inverno. Abitabile da subito, rappresenta una soluzione ideale sia come residenza principale sia come casa vacanza, grazie anche alla sua posizione strategica a 10 minuti dal Lago d’Idro.

Coordinate Google Maps: 45.712621,10.462183

DISTANZA DA:
  • Spiaggia
  • 5 km
  • Impianti sciistici
  • 10 km
  • Studio medico/Ospedale
  • 14 km
  • Stazione Ferroviaria
  • 38 km
  • Aeroporto Verona VRN
  • 84 km
  • Aeroporto Bergamo BGY
  • 90 km
  • Aeroporto Milano Linate LIN
  • 135 km
  • STATO IMMOBILE
    OTTIMO / RISTRUTTURATO

    PIANO
    SU PIù PIANI

    BAGNI
    2

    CUCINA
    CUCINOTTO

    VANI
    6.00

    SUPERFICIE ABITABILE
    96 mq
    SUPERFICIE COMMERCIALE
    152 mq

    RISCALDAMENTO
    AUTONOMO
    TIPO IMPIANTO
    RADIATORI
    ALIMENTAZIONE
    GASOLIO

    DOTAZIONI
    GARAGE / CANTINA / PARZIALMENTE ARREDATO / CENTRO STORICO / BALCONE / MANSARDA / ZONA TRANQUILLA

    CERTIFICAZIONE ENERGETICA
    CLASSE ENERGETICA G
    (D.M. 26/06/2015)

    PE fabbricato inverno: Bassa
    PE fabbricato estate: Media

    IPE globale non rinnovabile (EPgl,nren): 768,20 kWh\m2a
    IPE globale rinnovabile (EPgl,ren): 0.00 kWh\m2a
    Visita il nostro territorio
    La Valle Sabbia
    12 Novembre 2024

    Ti potrebbero interessare anche...

    La newsletter di Agenzia Immobiliare Piccinelli: iscriviti per ricevere proposte, novità e informazioni utili.