Casa en Bione

Código de la propiedad: 726

  Bione

  Casa

Habitaciones 4

Superficie 215 mq

Jardín 240 mq

CERT. EN.

CATEGORíA DE ENERGíA G

Euro 30.000

En Bione, ofrecemos una casa con jardín privado y vistas panorámicas.

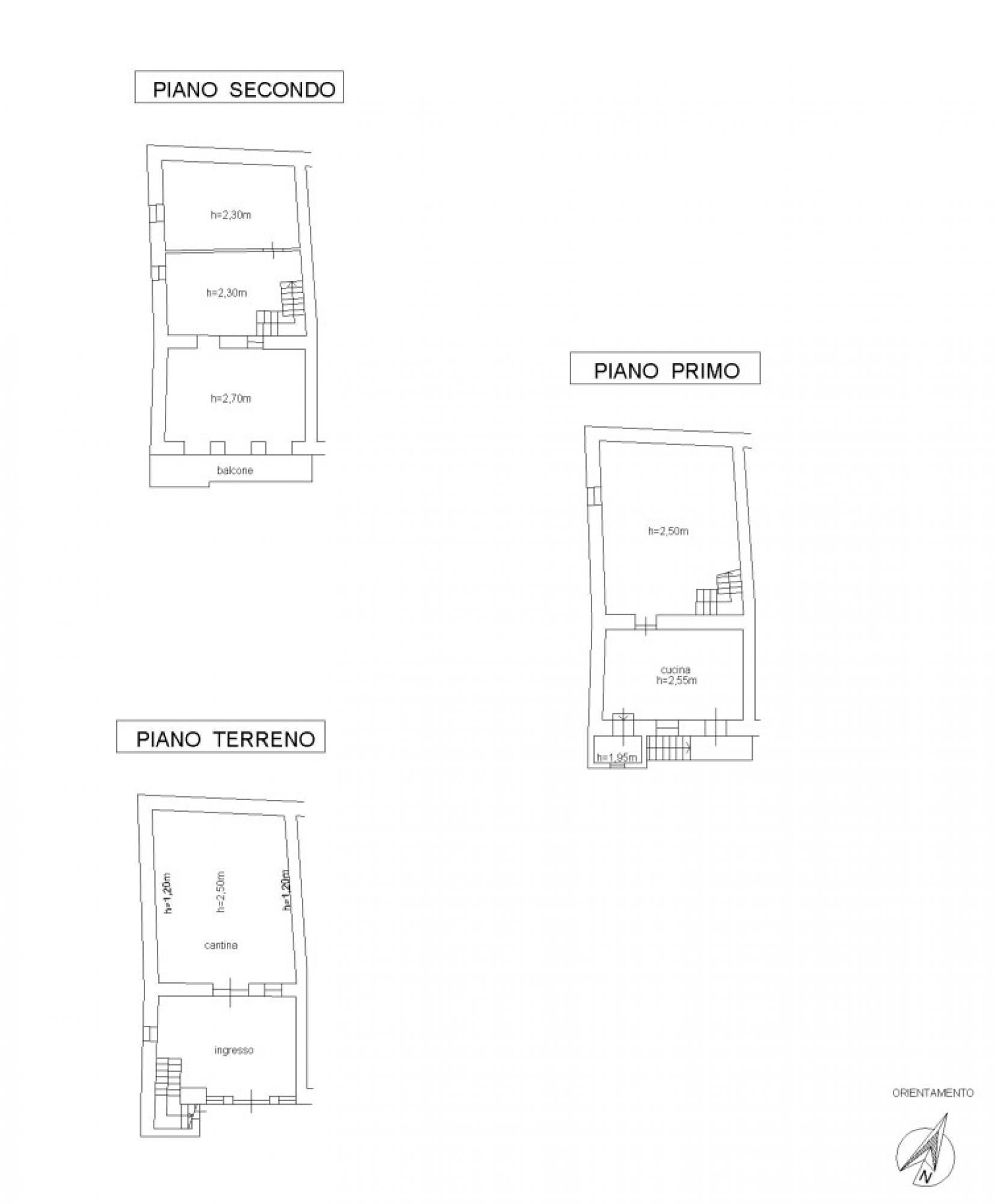
Se trata de una casa para reformar dispuesta en tres plantas.
En la planta baja hay un gran hall de entrada y una bodega.
Subiendo desde la entrada, en el primer y segundo piso encontramos la casa actual.
En la primera planta hay un gran salón con cocina y comedor.
En la segunda planta hay dos dormitorios (uno de ellos con balcón) y un gran lavadero con un baño con ventana.
El jardín privado se extiende tanto al lado como al frente de la casa.
La zona donde se encuentra la propiedad es tranquila y soleada.

DISTANCIA DESDE:
  • Tiendas/aldeas más cercanas
  • 400 km
  • Playa
  • 20 km
  • Instalaciones de esquí
  • 35 km
  • Consultorio médico/hospital
  • 13 km
  • Estación de tren
  • 45 km
  • Aeropuerto Verona VRN
  • 85 km
  • Aeropuerto de Bergamo BGY
  • 75 km
  • Aeropuerto Milán Linate LIN
  • 115 km
  • ESTADO DEL INMUEBLE
    NECESIDAD DE RENOVACIóN

    PISO
    EN VARIAS PLANTAS

    COCINA
    COCINA COMEDOR

    HABITACIONES
    3.00

    SUPERFICIE HABITABLE
    145 mq
    SUPERFICIE COMERCIAL
    209 mq

    CALEFACCIóN
    AUSENTE

    EQUIPO
    JARDíN PRIVADO / SóTANO / BALCóN / ENDROIT CALME / SIN AMUEBLAR

    CERTIFICACIóN ENERGéTICA
    CATEGORíA DE ENERGíA G


    PE fabricado invierno: Baja
    PE fabricado verano: Media

    IPE global no renovable (EPgl,nren): 366.36 kWh\m2a
    IPE global renovable (EPgl,ren): 0.00 kWh\m2a
    Comprar
    Consejo

    Usted también podría estar interesado en...

    El boletín de Immobiliare Piccinelli: suscríbase para recibir propuestas, noticias e información útil